Boligpartner
Bruksareal
292 m2
Antall soverom
6 soverom
Antall bad
2 bad

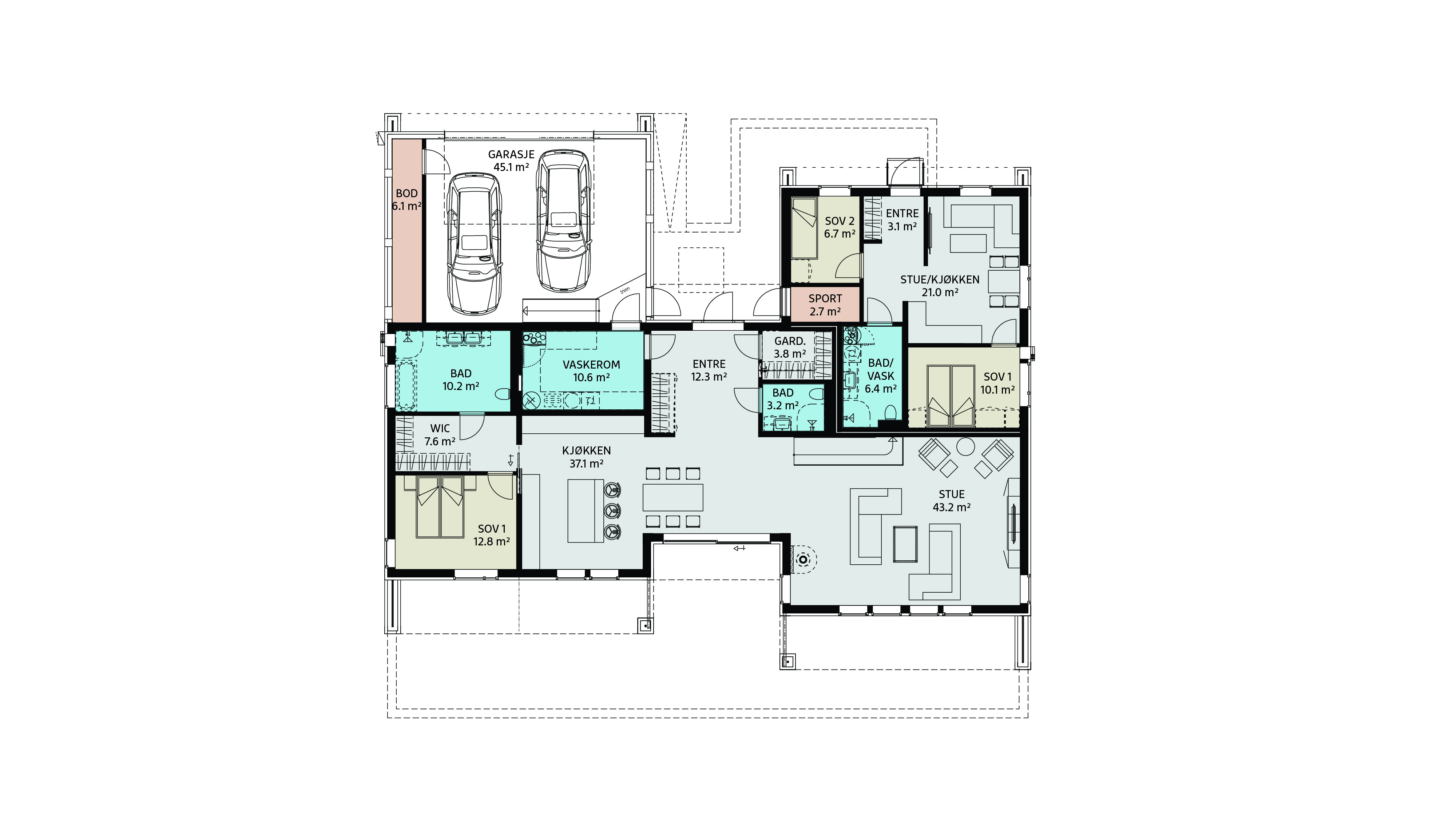
Et moderne ferdighus med alt du trenger på ett plan

Med 292 kvm boareal og alle funksjoner på ett plan er Pavia et hus som kan slå følge med deg gjennom hele livet.

Elegant og funksjonelt, lyst og romslig. Pavia er huset som kombinerer smarte løsninger med god plass, perfekt for barnefamilien. Med alt på én flate er hjemmet tilrettelagt for hele livet; enten om du ønsker en praktisk hverdag uten trapper eller har behov for tilpasninger i fremtiden.

Husets hjerte, kjøkkenet og stuen, fungerer som et naturlig skille mellom to soner: en voksensone på den ene siden og en barneavdeling med tre soverom som rammer inn en hyggelig TV-stue på den andre.

De store vinduene inviterer naturen inn og gir en luftig atmosfære, mens tahøyden på opptil 5,9 meter i kjøkken og stue forsterker følelsen av romslighet.

Pavia tilbyr også praktiske oppbevaringsløsninger, fleksible innredningsmuligheter og en integrert dobbelgarasje som elegant er en del av husets design.

i Spira mørk stue 2 Eve 1698395164-3491-01-SKL-i-06-living_dark-style_R02.jpg Husmodell med fantastisk takhøyde
Arkitekten om huset

Størrelsen og planløsningen til Pavia gir deg muligheten til å gjøre om barne- / ungdomsfløyen til utleiedel.

Teknisk info

BRA total:
330 m2
BRA-i:
292 m2
P-rom:
241 m2
Bebygd Areal:
329 m2
L x B:
21.3 x 14.2 m
Soverom:
6
Bad:
2
Tilgjengelig bolig:
Ja
Vaskerom:
1
Tomtetype:
Flat tomt

Ønsker du en uforpliktene husprat med en rådgiver?

Plantegning og fasade

Ditt hus - din stil

Ingen av husene vi bygger blir helt like. Dette er fordi våre arkitekter tilpasser alle våre husmodeller etter våre kunders ønsker og behov. De flytter vegger, endrer tak, lager rom og strekker seg langt for å oppfylle alle ønsker.

En annen grunn til at ingen av våre hus blir like er fordi alle har sin stil. Til inspirasjon har vi derfor illustrert husmodellen Pavia i både mørk og lys interiørstil. Se bildene under.

En luftig atmosfære

Lyse farger som hvit, beige og pasteller gir rommene en tidløs og beroligende karakter. Denne stilen maksimerer naturlig lys, ofte ved hjelp av store vinduer og lette tekstiler, som lin eller bomull. Lyse overflater skaper et rent og harmonisk uttrykk som passer perfekt for de som ønsker en rolig base i hverdagen. Interiøret er gjerne kombinert med naturlige materialer som lyst treverk og grønne planter.

Vår økonomiske plan gir deg et trygt boligkjøp

Å bygge et nytt hus er en av de aller største investeringene du gjør i livet. Vi vet at du trenger en fullstendig oversikt som viser akkurat hvor mye husprosjektet koster, og en trygghet på at sluttsummen blir som forventet.

En sofistikert og dramatisk atmosfære

Mørke farger som dyp blå, kullgrå og sort gir rommet en følelse av intimitet og eleganse. Kombinert med materialer som fløyel, skinn og mørkt treverk skaper denne stilen en luksuriøs og innbydende følelse. Myke, varme lyskilder fremhever teksturer og skaper en lun stemning.

Ønsker du Pavia med utleiedel?

Vi tegner og tilpasser alle våre husmodeller slik at kunden får akkurat det huset de drømmer om. Vår nyeste husmodell Pavia er i utgangspunktet tegnet som en familiebolig med 4 soverom på hovedplan og egen del dedikert til barne-/ungdomsrom. Men du kan også bygge huset med utleiedel som kan være med på å finansiere en viktig del av boliglånet ditt.

Les mer om fordelene med utleie

Slik velger du interiørfarger til nytt hus

Veggfargen er trolig det enkleste interiørmessige tiltaket for å sette stil og stemning i et rom. Når du bygger nytt ferdighus kan du velge nøyaktig den interiørfargen du vil. Men hvordan velger man blant tusenvis av farger? Vi gir deg noen tips på veien og presenterer smakebiter fra Jotun LADY sitt nye fargekart CANVAS 2024.

Les mer
Interiørillustrasjon av stuen i 1. etasje i husmodellen Adria. Vegger og tak er malt i behagelige fargetoner og det er brukt eikespiler på deler av veggen. Skyvedører ut til uteplassen står åpne.

Husets ulike rom

Husets rom har ulike formål og skal spille ulike roller i livene våre. Hvilke behov skal de ulike værelsene fylle for deg? Bli med på en liten tur gjennom noen av husets rom.

Les mer

Bygde drømmehuset som generasjonsbolig

Jonas og Hege var på jakt etter ny bolig for å få bedre plass. Nærmest på fleip foreslo mor og svigermor Bente (69) at de skulle gå sammen om å bygge generasjonsbolig. I dag bor to husholdninger romslig i hver sin del av huset som i en tomannsbolig.

Les mer

Byggeprosessen. Wanja bygger, del 5

I den siste perioden har det skjedd veldig mye med det vakre huset i Drøbak, selv om mye av arbeidet ikke er synlig utenfra. Enorme mengder med isolasjon er lagt i tak og vegger, og elektriker har trukket mange, mange meter med kabler og gjort alt klart for et skjult elektrisk anlegg.

Les mer

Byggeprosessen. Wanja bygger, del 4

Nå har det skjedd store ting på byggeplassen i Drøbak! Reisverket er oppe og både konturene av huset og de flotte fasadene står nå og smiler mot den storslåtte utsikten over Oslofjorden.

Les mer

Byggeprosessen. Wanja bygger, del 3

Byggeprosessen fortsetter! Flere uker har gått siden forrige oppdatering fra Hamsun-tomta i Drøbak, og nå har det skjedd spennende saker i husbyggingen til vår egen boligkonsulent Wanja Sanfelt. Nå er sålen for huset og garasjen støpt, og snart skal veggene reises!

Les mer