- Bruksareal
- 218 m2
- Antall soverom
- 4 soverom
- Antall bad
- 3 bad
Funkishus på skrå tomt!
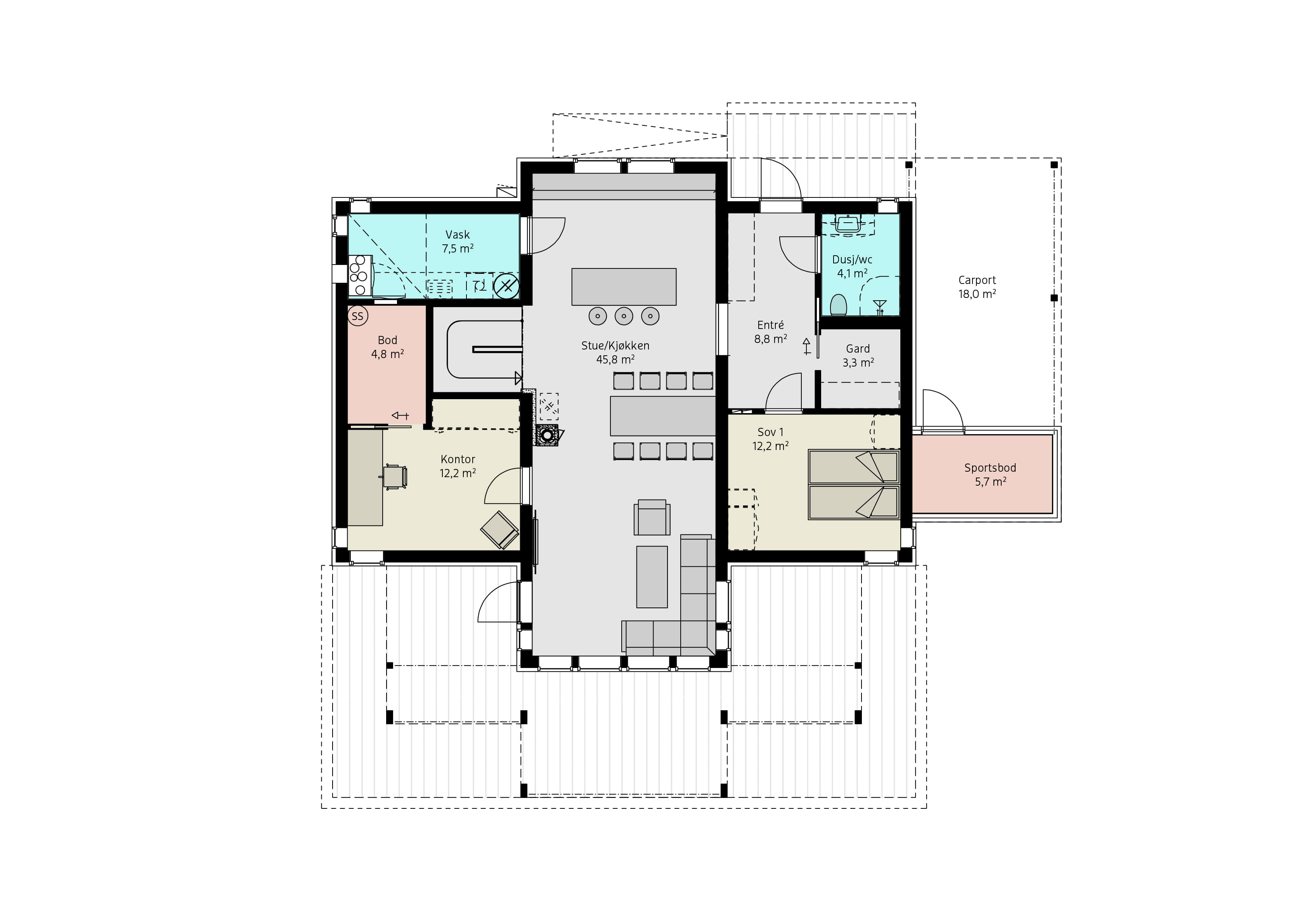
Funkishus på skrå tomt! Quadra Trient har hentet det beste fra sine søsken i funkis-serien, men er utviklet spesielt for å passe inn i skrånende terreng. Boligen har et bruksareal på 218 kvadratmeter fordelt på to plan. Quadra Trient er med andre ord et moderne funkishus i familievennlig størrelse som innfrir de fleste drømmer og behov.
Quadra Trient er et symmetrisk funkishus tilpasset skrå tomter. I 1. etasje er det store allrommet formet som et midtskip bestående av kjøkken, stue med ildsted, spiseplass og utgang til en stor, delvis overbygget uteplass. Hovedsoverommet har tilhørende bad og walk-in closet.
Funkishuset har totalt fire soverom, tre bad og fire boder – hvorav den største er på hele 15 kvadratmeter. Den kan innredes etter eget ønske som for eksempel trimrom. Det ene soverommet kan gjerne brukes som for eksempel et kontor. Du bestemmer.
Quadra Trient er et funkishus som passer til skrå tomter, klikk her for å se alle våre funkishus.
Ønsker du å vite prisen på dette huset? Registrer deg her , så tar vi kontakt med deg for en uforpliktende husprat.
- BRA total:
- 262 m2
- BRA-i:
- 218 m2
- TBA:
- 36 m2
- Bebygd Areal:
- 167 m2
- L x B:
- 13.2 x 14.6 m
- Soverom:
- 4
- Bad:
- 3
- Innvendig bod:
- 4
- Energimerking:
- B
- Tilgjengelig bolig:
- Ja
- Tomtetype:
- Skrå tomt

Bestill huskatalog gratis
Bestill vår huskatalog. Katalogen er full av nye husmodeller, boliginspirasjon og kundereportasjer. Vår huskatalog er digital, slik at du mottar en lenke til katalogen umiddelbart etter bestilling. Det betyr at du kan lese katalogen med en gang.
Plantegninger og fasade
Se hvor mye du kan spare ved å bygge nytt hus
Mange tenker at det er dyrere å investere i et nytt hus sammenliknet med å kjøpe en brukt bolig. I denne kalkulatoren kan du selv beregne hvor stor besparelsen kan bli. Fyll inn dataene i tabellen og klikk deretter på knappen "Beregn"

En flott kundetilpasset Trient på Gjøvik

Alle våre hus kan tilpasses
Ønsker deg noen endringer på husene våre? Det går helt fint. Våre arkitekter kan tegne om huset slik at du får akkurat den planløsningen som passer både dine behov og tomten.